Gemütliche Erdgeschosswohnung mit Balkon in Neu Zippendorf!

Adresse 19063 Schwerin

Zimmer 3

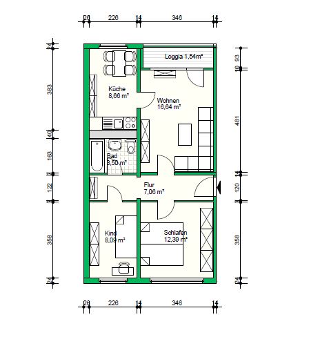
Größe 57,88 m²

Kalt-Miete 350,00 €

Nebenkosten 210,00 €

Gesamtmiete 560,00 €

Straße Potsdamer Str. 15

Stadtteil Neu Zippendorf

Baujahr 1978

Energieausweisart Verbrauchsenergieausweis

Energieverbrauch 116,00 kWh/(m²*a)

Erstellungsdatum des Ausweises

Warmwasser enthalten ja

Wesentlicher Energieträger Fernwärme

Objektnummer 1/3108/08/10801

Verfügbar ab 01.02.2026

Objektbeschreibung

Sie suchen eine Erdgeschosswohnung in Schwerin-Neu Zippendorf?

Dann ist diese Wohnung in der Potsdamer Straße 15 genau das Richtige für Sie! Die Wohnung eignet sich ideal für Singles, Paare oder Senioren, die eine komfortable und leicht zugängliche Wohnlösung suchen.
Highlights der Wohnung:

✔ Bequem im Erdgeschoss – wenig Treppen, ideal für jedes Alter
✔ Optimale Anbindung – Einkaufsmöglichkeiten, ÖPNV und Freizeitangebote in direkter Nähe

Nutzen Sie diese Chance und vereinbaren Sie noch heute einen Besichtigungstermin!

WGS Schwerin – Ihr Zuhause in besten Händen!

Beschreibung der Ausstattung

Innenliegendes Wannenbad
Balkon
Kabelanschluss über den Anbieter PŸUR
Mieterkeller

Beschreibung der Lage

Das Wohnhaus befindet sich im Stadtteil Neu Zippendorf.
Die Nähe zum Schweriner See, zahlreiche Rad- und Wanderwege sowie eine ausgewogene Infrastruktur prägen die Wohnqualität in diesem Stadtgebiet.
Ebenso ist die unmittelbare Nahverkehrsanbindung mit Bus und Bahn gegeben sowie Einkaufspassagen, Apotheken und die Sparkasse.
Reges Markttreiben auf dem Berliner Platz charakterisiert und belebt diese Region.

WGS Team Neuvermietung

Telefon: 0385 7426-200
Fax: 0385 7426-100

Sie haben Interesse an der Wohnung? Schreiben Sie uns!

Ich erkläre mich damit einverstanden, dass meine Daten gemäß Datenschutzerklärung zum Zweck der Wohnungssuche automatisiert gespeichert und verwendet werden. *

* Pflichtfelder