Gewerbeeinheit Freiraum für Ihre Ideen...

Adresse 19061 Schwerin

Zimmer 4

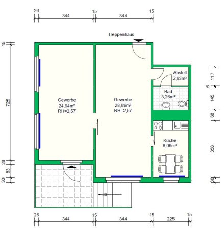
Nutzfläche 67.58 m²

Kalt-Miete 439,00 €

Nebenkosten 215,00 €

Gesamtmiete 654,00 €

Straße Karl-Kleinschmidt-Str. 12

Stadtteil Krebsförden

Baujahr 1991

Energieausweisart Verbrauchsenergieausweis

Energieverbrauch 97,00 kWh/(m²*a)

Erstellungsdatum des Ausweises

Warmwasser enthalten ja

Wesentlicher Energieträger Fernwärme

Objektnummer 1/3200/03/30301

Verfügbar ab sofort

Objektbeschreibung

Der aktuelle 360° Rundgang zeigt die derzeitige Ausstattung der Gewerbeeinheit.

Beschreibung der Ausstattung

große Schaufenster
Kundeneingang
Personaleingang über Treppenhaus
Toilette
Küche
Kabelanschluss über gesonderten Vertrag

- Zusätzliche Merkmale: Treppenhausreinigung durch Servicepartner

Beschreibung der Lage

Der Stadtteil Krebsförden hat ca. 6.100 Einwohner und ist gut mit öffentlichen Verkehrsmitteln, wie Bus und Bahn zu erreichen. Im Wohngebiet befindet sich das Sieben Seen Center mit seinen vielen Einkaufsmöglichkeiten.

WGS Team Neuvermietung

Telefon: 0385 7426-200
Fax: 0385 7426-100

Sie haben Interesse an der Gewerbeimmobilie? Schreiben Sie uns!

Ich erkläre mich damit einverstanden, dass meine Daten gemäß Datenschutzerklärung zum Zweck der Wohnungssuche automatisiert gespeichert und verwendet werden. *

* Pflichtfelder