2-RW mit super Infrastruktur

Adresse 19061 Schwerin

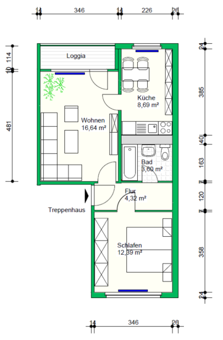
Zimmer 2

Größe 47,18 m²

Etage 3

Kalt-Miete 311,00 €

Nebenkosten 156,00 €

Gesamtmiete 467,00 €

Straße Robert-Havemann-Str. 26

Stadtteil Großer Dreesch

Baujahr 1974

Energieausweisart Verbrauchsenergieausweis

Energieverbrauch 85,00 kWh/(m²*a)

Erstellungsdatum des Ausweises

Warmwasser enthalten ja

Wesentlicher Energieträger Fernwärme

Objektnummer 1/3055/02/10208

Verfügbar ab sofort

Objektbeschreibung

Diese 2-Zimmerwohnung soll schnell wieder bewohnt werden. Hervorheben muss man eindeutig die günstige Lage unweit des Dreescher Marktes.

Beschreibung der Ausstattung

Fernwärme
Mieterkeller
Breitbandkabelanschluss
- Zusätzliche Merkmale: Treppenhausreinigung durch Servicepartner

Beschreibung der Lage

Das in den 70er Jahren errichtete Wohngebiet Großer Dreesch punktet durch seine günstige Lage. In wenigen Minuten sind Sie mit der Straßenbahn in der Innenstadt. Sie finden in diesem Wohngebiet eine sehr gute Infrastruktur, mit verschiedenen Einkaufsmöglichkeiten, Schulen, Kitas und vielen Ärzten.

WGS Team Neuvermietung

Telefon: 0385 7426-200
Fax: 0385 7426-100

Sie haben Interesse an der Wohnung? Schreiben Sie uns!

Ich erkläre mich damit einverstanden, dass meine Daten gemäß Datenschutzerklärung zum Zweck der Wohnungssuche automatisiert gespeichert und verwendet werden. *

* Pflichtfelder