Frühlingsaktion! Barrierearme Wohnung, Komfort für Senioren!

Adresse 19057 Schwerin

Zimmer 2

Größe 50,00 m²

Etage 8

Kalt-Miete 348,00 €

Nebenkosten 202,00 €

Gesamtmiete 550,00 €

Straße Rahlstedter Str. 1

Stadtteil Lankow

Baujahr 1967

Energieausweisart Verbrauchsenergieausweis

Energieverbrauch 113,00 kWh/(m²*a)

Erstellungsdatum des Ausweises

Warmwasser enthalten ja

Wesentlicher Energieträger Fernwärme

Objektnummer 1/1278/01/11137

Verfügbar ab 01.04.2026

Objektbeschreibung

Nette Senioren gesucht!
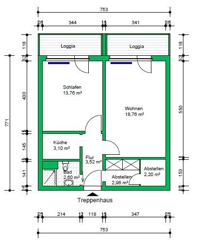
Diese 2-Raumwohnung befindet sich im 8. Obergeschoss des sanierten bunten Hochhauses mitten im Herzen von Lankow und ist insbesondere für die ältere Generation geeignet. Geschätzt wird diese Objekt nicht nur wegen seiner hervorragenden infrastrukturellen Lage. Der vorhandene Aufzug und das praktische Duschbad bieten die nötige Bequemlichkeit. Die zwei vorhandenen Loggien und ein separater Abstellraum innerhalb der Wohnung sind ein weiteres Plus. Unser freundlicher Concierge erwartet Sie im Eingangsbereich und hat stets ein offenes Ohr für Ihre kleinen und größeren Sorgen oder Fragen.
Lust auf eine Besichtigung? Wir freuen uns auf Ihre Anfragen.

Beschreibung der Ausstattung

Aufzug
2 Loggien
Duschbad
separater Abstellraum innerhalb der Wohnung
Heizung und Warmwasser über Fernwärme
E-Herdanschluss
Concierge
Mieterkeller
Breitbandkabelanschluss möglich
Treppenhausreinigung durch Servicepartner
- Zusätzliche Merkmale: Hochhaus, barrierearmes Wohnen, Treppenhausreinigung durch Servicepartner

Beschreibung der Lage

Lankow ist ein beliebter Wohnstandort, gelegen zwischen dem Lankower- und Medeweger See.
Dieser Stadtteil liegt im Nordwesten Schwerins und ist von viel Natur umgeben. Die Infrastruktur ist ausgezeichnet und auch die Anbindung an den öffentlichen Nahverkehr ist sehr gut. In ca.15 Minuten sind Sie in der Innenstadt.

WGS Team Neuvermietung

Telefon: 0385 7426-200
Fax: 0385 7426-100

Sie haben Interesse an der Wohnung? Schreiben Sie uns!

Ich erkläre mich damit einverstanden, dass meine Daten gemäß Datenschutzerklärung zum Zweck der Wohnungssuche automatisiert gespeichert und verwendet werden. *

* Pflichtfelder