Planen Sie Ihren Einzug mit uns!

Adresse 19061 Schwerin

Zimmer 3

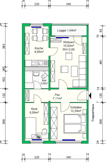
Größe 58,11 m²

Etage 4

Kalt-Miete 383,00 €

Nebenkosten 173,00 €

Gesamtmiete 556,00 €

Straße Von-Stauffenberg-Str. 18

Stadtteil Großer Dreesch

Baujahr 1975

Energieausweisart Verbrauchsenergieausweis

Energieverbrauch 79,00 kWh/(m²*a)

Erstellungsdatum des Ausweises

Warmwasser enthalten ja

Wesentlicher Energieträger Fernwärme

Objektnummer 1/3052/02/10209

Verfügbar ab sofort

Objektbeschreibung

Wenn Ihnen die Lage und der Zuschnitt dieser 3-Raum-Wohnung zusagen, dann sichern Sie sich schnell einen Besichtigungstermin.

Beschreibung der Ausstattung

Loggia
Heizung über Fernwärme
separater Mieterkeller
Kabelanbieter PYUR

Beschreibung der Lage

Das in den 70er Jahren errichtete Wohngebiet Großer Dreesch punktet durch seine günstige Lage. In wenigen Minuten sind Sie mit der Straßenbahn in der Innenstadt. Sie finden in diesem Wohngebiet eine sehr gute Infrastruktur, mit verschiedenen Einkaufsmöglichkeiten, Schulen, Kitas und vielen Ärzten.

WGS Team Neuvermietung

Telefon: 0385 7426-200
Fax: 0385 7426-100

Sie haben Interesse an der Wohnung? Schreiben Sie uns!

Ich erkläre mich damit einverstanden, dass meine Daten gemäß Datenschutzerklärung zum Zweck der Wohnungssuche automatisiert gespeichert und verwendet werden. *

* Pflichtfelder