Wir suchen Sie!

Adresse 19061 Schwerin

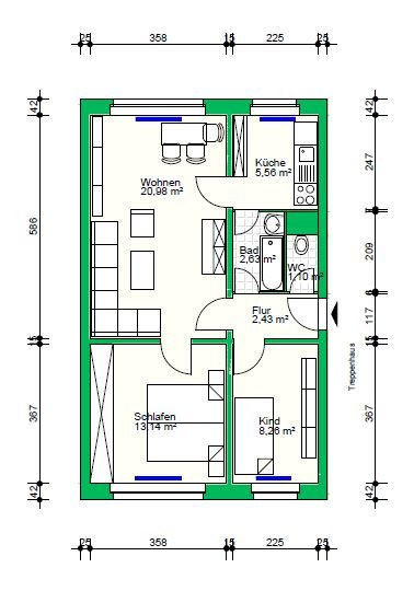
Zimmer 3

Größe 54,20 m²

Etage 4

Kalt-Miete 357,00 €

Nebenkosten 159,00 €

Gesamtmiete 516,00 €

Straße Friedrich-Engels-Str. 18

Stadtteil Großer Dreesch

Baujahr 1972

Energieausweisart Verbrauchsenergieausweis

Energieverbrauch 81,00 kWh/(m²*a)

Erstellungsdatum des Ausweises

Warmwasser enthalten nein

Wesentlicher Energieträger Fernwärme

Objektnummer 1/3027/05/10509

Verfügbar ab 01.04.2026

Objektbeschreibung

Wenn Ihnen die Lage und der Zuschnitt dieser 3-Raumwohnung zusagen, kontaktieren Sie uns gern.

Beschreibung der Ausstattung

gefliestes Wannenbad
Heizung über Fernwärme
Warmwasseraufbereitung über Gasdurchlauferhitzer
separater Mieterkeller
Kabelanbieter PYUR

- Zusätzliche Merkmale: Ww über Gasdurchlauferhitzer, Treppenhausreinigung durch Servicepartner

Beschreibung der Lage

Das in den 70er Jahren errichtete Wohngebiet Großer Dreesch punktet durch seine günstige Lage. In wenigen Minuten sind Sie mit der Straßenbahn in der Innenstadt. Sie finden in diesem Wohngebiet eine sehr gute Infrastruktur, mit verschiedenen Einkaufsmöglichkeiten, Schulen, Kitas und vielen Ärzten.

WGS Team Neuvermietung

Telefon: 0385 7426-200
Fax: 0385 7426-100

Sie haben Interesse an der Wohnung? Schreiben Sie uns!

Ich erkläre mich damit einverstanden, dass meine Daten gemäß Datenschutzerklärung zum Zweck der Wohnungssuche automatisiert gespeichert und verwendet werden. *

* Pflichtfelder