Wohnen am Lewenberg: Urbanes Leben trifft moderne Sanierung

Adresse 19053 Schwerin

Zimmer 5

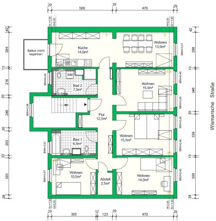
Größe 111,00 m²

Kalt-Miete 1212,00 €

Nebenkosten 280,00 €

Gesamtmiete 1492,00 €

Straße Wismarsche Str. 284

Stadtteil Innenstadt

Baujahr 1906

Energieausweisart Verbrauchsenergieausweis

Energieverbrauch 102,00 kWh/(m²*a)

Erstellungsdatum des Ausweises

Warmwasser enthalten ja

Wesentlicher Energieträger GAS

Objektnummer 1/6120/01/11109

Verfügbar ab 01.08.2026

Objektbeschreibung

Das im Jahr 1906 errichtete Gebäude wurde im Jahr 2026 einer umfassenden Sanierung unterzogen.
Auf fünf Etagen bietet dieses Haus den Bewohnern moderne 2 Raumwohnungen und einer familienfreundlichen Dachgeschosswohnung.

Beschreibung der Ausstattung

sanierte Dachgeschosswohnung im 4. OG = 5. Etage
Tageslichtbad mit Dusche und Waschmaschinenanschluss
2. Tageslichtbad mit Wanne
offener Bereich für Kochen - Essen - Wohnen
bodentiefes Fenster in der Küche mit einer Höhe von ca. 1,70 m²
Mieterkeller
- Zusätzliche Merkmale: Offene Küche, Tageslichtbad

Beschreibung der Lage

Die Wismarsche Straße 284 im Schweriner Stadtteil Lewenberg bietet eine zentrumsnahe und gut angebundene Wohnlage, die durch eine Mischung aus historischer Bausubstanz, sanierten Wohngebäuden und der Nähe zu medizinischen Einrichtungen geprägt ist.
Die Schweriner Altstadt ist sowohl fußläufig (ca. 30 Min. Spaziergang am Wasser) als auch sehr schnell per Straßenbahn erreichbar.
ÖPNV: Die Straßenbahnlinien 1 und 4 halten an der Haltestelle "Lewenberg" in direkter Nähe.
Versorgung: Einkaufsmöglichkeiten, Bäcker und Dienstleister des täglichen Bedarfs sind im angrenzenden Wohngebiet vorhanden.

WGS Team Neuvermietung

Telefon: 0385 7426-200
Fax: 0385 7426-100

Sie haben Interesse an der Wohnung? Schreiben Sie uns!

Ich erkläre mich damit einverstanden, dass meine Daten gemäß Datenschutzerklärung zum Zweck der Wohnungssuche automatisiert gespeichert und verwendet werden. *

* Pflichtfelder